Retour

La Caravane Sanitaire 3 cabines et 3 urinoirs


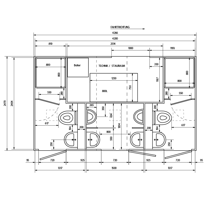
Aménagement Intérieur Détaillé

  • Espace Urinoirs & Sanitaire : Le côté Hommes comprend 3 urinoirs, 1 cabine sanitaire, un lavabo, un miroir, une poubelle, un chauffage, un distributeur essuie-mains, un distributeur de savon et un porte-manteau, dans un espace fonctionnel conçu pour une utilisation rapide et pratique.
  • Espace WC Individuels : Le côté Femmes dispose de 2 cabines individuelles, chacune équipée d’un WC, d’un lavabo, d’un miroir, d’une poubelle, d’un chauffage, d’un distributeur essuie-mains, d’un distributeur de savon et d’un porte-manteau, offrant un espace pratique et confortable.

L’autonomie

  • Autonomie adaptée à vos événements : L’autonomie de la remorque sanitaire permet de fonctionner efficacement pendant toute la durée de vos événements, grâce à ses réservoirs adaptés et à son système pensé pour supporter un usage continu sans intervention immédiate.
  • Urinoirs Sans Eau : L’utilisation d’urinoirs sans eau réduit non seulement la consommation, mais contribue également à maintenir un environnement plus hygiénique.

Efficacité Énergétique

  • Économie d’Énergie : La remorque sanitaire est conçue pour réduire sa consommation grâce à un système électrique optimisé, assurant un fonctionnement fiable tout en limitant l’énergie nécessaire durant l’utilisation.
  • Technologie LED : L’éclairage intégré utilise la technologie LED pour une faible consommation .

Spécifications techniques